Happy Republic Day
Loader
Join Now
The Future Of Design
Explore & Enjoy!!!

'The Orange Extension' by ShroffLeon: Wild Wood & Weathering Steel in a Mumbai suburban home!

Posted by
on May 05, 2016 at 03:16 PM

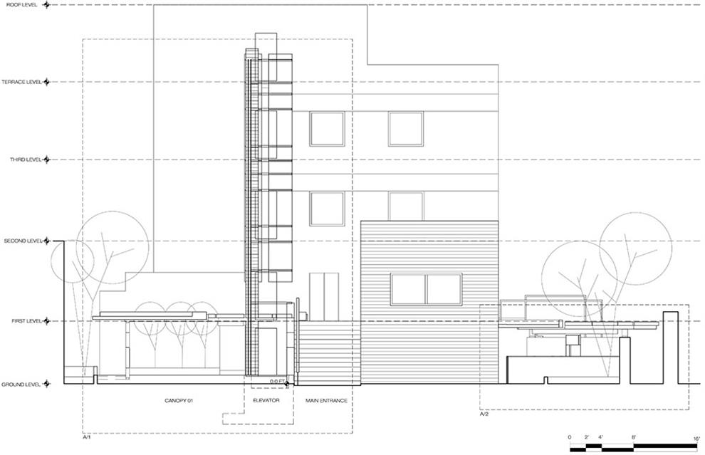
ShroffLeon’s latest project – a 1500 sq m extension to a large 60 year old family home in Bandra, Mumbai – is inspired by the existing geometry and borrows from the material palette of the old bungalow. Spread over four floors and sitting on canopies created specially for covering the luxury cars the client is fond of collecting – the extension blends in seamlessly with the original. Adding a rustic, poetic touch to the elevation is the new material incorporated by ShroffLeon – weathering steel, which turns a deep and lovely shade of orange with a rust-like appearance once exposed to the weather. And thus ‘The Orange Extension’ gets its name…

© Courtesy of ShroffLeon; Photography by: Sebastian Zachariah / Photographix

ShroffLeón, incepted in 2008 in Ithaca, New York by Kayzad Shroff and Maria Isabel Jimenez Leon is now a Mumbai-based studio offering comprehensive architectural, planning and consultancy services to civic, municipal, institutional and private clients. Shroffleón continually strives to invent innovative, environmentally responsible design solutions whilst creating spaces that establish healthy connections, fluid exchanges between inhabitants and their environments. 

Rooted within a singular concept, each project starts with a careful analysis of the site and the brief. The project develops in conjunction with the client; through an identification of the constraints, objectives, potentials and most importantly, the budget.

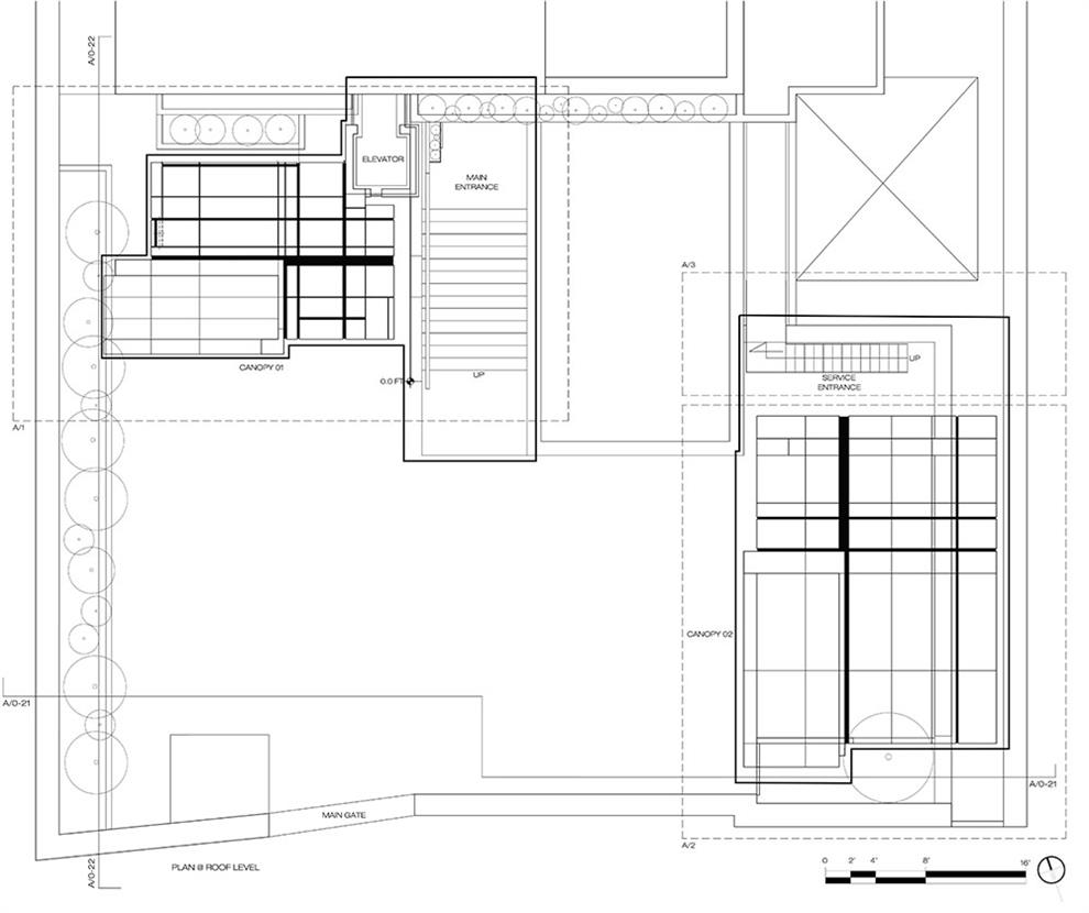
This particular project of an extension to a large 60 year old family home in Bandra, Mumbai, came with a unique brief. The client being a collector of super luxury cars requested twin extensions to his home in the form of canopies to protect his prized possessions from the sun and rain, along with an overall modernization of the facilities including an exterior elevator core.

Overall, the design intent was to augment the facilities and modernize the systems, while retaining the aesthetic character of the original home. Therefore the geometry and choice of materials and textures is seen to respect and flow in accordance with that of the existing site context. 

The primary decision therefore was to continue the white plaster-random rubble-ipe wood-glass aesthetic and alignment over onto the new extension. To achieve this, grooves were added as interventions for establishing a seamless continuity. "The grooves are of varying widths that stress the importance of certain contextual placements over others. The major grooves have lights embedded within them, highlighting the importance of the primary contextual connections. This resulting network of grooves serves the double purpose of channelling rainwater into a collection plate, from where it is discharged ceremoniously into the adjoining flower bed," explains Kayzad. 

The canopies needed to be treated with utmost thought and meticulous attention to detail; as even the underbellies of the large overhangs are fully visible to visitors while entering the home. The axis leading towards the entrance is accentuated through a lowering of the ceiling. "The rain water collection plate is texturally differentiated from the rest of the underbelly of the canopy, by continuing with the materiality of the top onto the lower surface – revealing its alternate purpose."

The geometry of the elevator core too emerged from adjoining contextual guidelines. The structure, joint lines, and of course the grooves, all find form and purpose though the context of the existing facade. Now standing tall in the centre, the elevator core acts as the anchor for the entire structure. 

The ShroffLeon intervention of weathering steel, besides lending a poetic touch to the material palette, serves another important purpose. Besides giving a powerful visual impact, it eliminates the need for painting – a huge positive in the Mumbai weather and conditions. Together with the white plastered surfaces, treated random rubble basalt stone walls, ipe wood and glass, the weathering steel adds rustic appeal to the bungalow’s aesthetic! 

Designer : ShroffLeon, Mumbai
Photography :Sebastian Zachariah / Photographix

Share your thoughts

(required) Characters Left 500
TOP