Happy Republic Day
Loader
Join Now
The Future Of Design
Explore & Enjoy!!!

Collage House: by S+PS Architects

Posted by
on August 01, 2016 at 02:48 AM

© Courtesy of S+PS Architects; Photography by: Sebastian Zachariah, Ira Gosalia, Photographix, Pinkish Shah

Architecture in Mumbai is often seen crumbling under varied pressures – such as plot size, FSI regulations, budget constraints and many more. The urban fabric in most organically growing Indian cities thus manifests as an eclectic collage of rehashed human lives, stories, buildings and settlements. The essence of a city usually comes through brilliantly in these pieces of urban patchwork, and thus has a unique identity.

In a house on a hill built by S+PS Architects, a unique architectural experiment is seen that mimics the urban patchwork. Inspired by the concept of ‘reduce, reuse, recycle’, Collage House – as it is aptly called; is the architects’ unusual solution for a home. And thus we see materials and elements from demolished buildings - such as doors, windows and pipes - being reclaimed and reused; and an intriguing home emerging from the assemblage.

The fact that the house was to be a home for a large four-generation family may have provoked the architects’ mind to visualize the spirit of co-habiting peacefully with contrasts!

S+PS Architects is a multi-faceted design studio that has over the years, emerged as a strong name in Indian architecture. Shilpa Gore Shah and Pinkish Shah - alumni of the Sir J. J. College of Architecture for B. Arch, and later armed with a Masters from the University of New Mexico, Albuquerque, USA - set up their practice in 1997.

S+PS Architects covers the entire spectrum of design – from the micro-level detailing of furniture and lighting design in interiors, to macro-level planning of large architectural and urban design projects. The practice has won several awards and accolades, and their work has been featured extensively in prestigious magazines and publications. 

The Collage House is one of the more recent of the studio’s projects that is much talked about for the innovative approach shown, in its concept and execution. 

“Living in Mumbai, India it is impossible to ignore the informal settlements in the city, and if looked at closely there are many lessons to be learnt in frugality, adaptability, multi-tasking, resourcefulness and ingenuity. A visual language emerges that is of the found object, ad-hoc, eclectic, patched and collaged. An attempt has been made here to apply some of these lessons without romanticizing or fetishizing them. The project looks at the idea of recycling and collage in several ways, from the very physical - like materials, energy, etc. to the intangible - like history, space and memories,” say Shilpa and Pinkish, the co-founders of S+PS Architects.

Derived from the diversity of life and habitats seen across the city of Mumbai, the façade of the home is a curious collage - with a “corner of windows” recycled from old windows and doors of demolished houses. The concrete frame - in a rough aggregate finish outside and in a smooth form finish inside - wraps and connects all the spaces from back to front and across all three levels. 

The contrast between the old and the new, the traditional and the contemporary, the rough and the finished thus continues from the exterior, into the house as well. Recycled materials like old textile blocks, flooring out of old Burma teak rafters and purlins, colonial furniture, fabric waste (chindi) along with new ways of using traditional elements like carved wooden mouldings, beveled mirrors, heritage cement tiles and many more such elements/materials help reinforce the theme. 

The living room, for instance, displays a stark contrast in the choice of materials and treatment - an exposed concrete ceiling and a polished white marble flooring with intricate brass inlay! The contrast also continues with the usage of hundred-year-old wooden columns salvaged from the ruins of a building that are seen supporting a lightweight, steel and glass pavilion (with solar panels above) on the terrace!

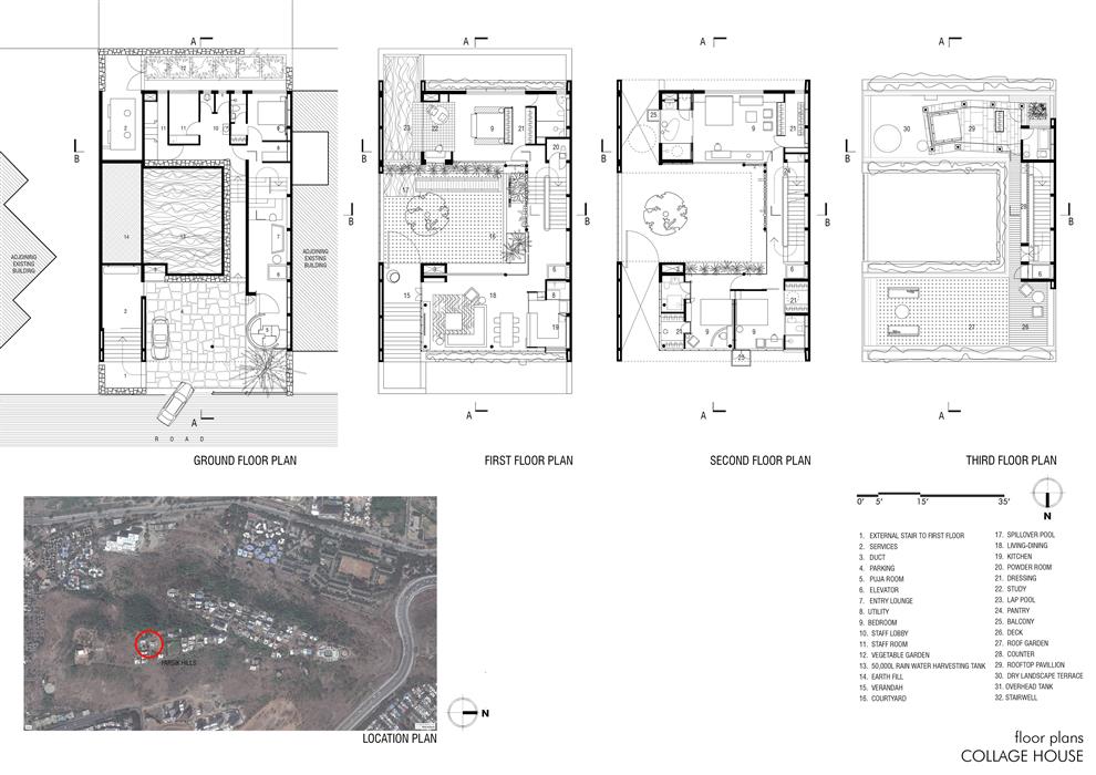
The plan of the house evolved from the site, and the fact that the house had neighbours on all three sides! Therefore, an inward-looking plan was developed, with a slightly tweaked interpretation of the quintessential Indian courtyard.

The courtyard is actually raised a floor above the ground level, with a large rainwater harvesting tank hidden below it. Wrapped with rock that was removed from the hillside during excavation, it is the core of the home - around which this large family is organized and where it comes together.

Metal pipe leftovers are pieced together to form a “pipe wall” integrating structural columns, while some rainwater drainage pipes are assembled to make a sculpture of spouts, which comes alive in the rains! Other reinvented scrap elements in the courtyard include a sculpture made from rusted metal plates riveted together, a planter put together using an assortment of colored tile samples, and a wall clad in cut-waste stone slivers lifted off the back of stone cutting yards and waste generated on site.

Of course the house accommodates the requirements listed down in the brief, and provides comfortable living and working spaces for all the members of the family. But placed atop a hill, and conceived around a less-explored theme - this effort of creating a harmonious co-existence of contrasts, is seen to give rise to a different, and indeed exciting, aesthetic language!

The new but strangely familiar, the hints of nostalgia along with the modern – it is neither kitsch nor is it purely eclecticism. Is it fusion, then? Much like contemporary cuisine which sees Indianized versions of foods from all over the world; and then the very extreme of innovations – the Chinese Dosa! Evocative, provocative, not purist but irresistible. 

The Collage House is an example of evocative architecture - which triggers a simultaneous and powerful visual and sensory process/response in the minds of the occupants, visitors and viewers… Very rare to see in contemporary architecture, it makes us rethink notions of beauty that we so often take for granted. 

FACT FILE:

PROJECT: COLLAGE HOUSE

LOCATION: Parsik Hill, Belapur, Navi Mumbai

CLIENT: Mr. Bhargava

ARCHITECT: S+PS Architects

DESIGN TEAM: Pinkish Shah, Shilpa Gore-Shah, Mayank Patel, Gaurav Agarwal, Shrutika Nirgun, Divya Malu, Manali Patel, Ved Panchwagh, Priyadarshi Srivastava

SITE AREA: 350 Square Meters or 3775 Square Feet

PROJECT AREA: 520 Square Meters or 5600 Square Feet

LIASION ARCHITECTS: Sopan Prabhu Architects

STRUCTURAL ENGINEERS: Rajeev Shah & Associates

SERVICES CONSULTANTS : Arkk Consultants

LANDSCAPE CONSULTANTS: S+PS Architects

SITE SUPERVISION: Amish Mistry Architect 

MODELS : S+PS Architects

PROJECT ESTIMATE : Withheld At Owners Request

INITIATION OF PROJECT : 2006

COMPLETION OF PROJECT: 2015

PHOTOGRAPHERS: Sebastian Zachariah, Ira Gosalia, Photographix, Pinkish Shah

ARCHITECTURAL AGENCIES AND CRAFTSMEN

MAIN CIVIL CONTRACTORS: Homework Constructions

FABRICATION: Deepak Mhatre, Shafibhai, Imam Steel, Furkan Sheikh

AGGREGATE PLASTER: Arvind Rathod

WINDOWS: Natwarlal Kawa

PLUMBING WORKS: Ajay Majhi. Hussainbhai

CARPENTRY: Aditya Rana

ELECTRICAL: Praful Sonawane, Mahesh Sawant

CIVIL FINISHING WORKS: Kantilal Suthar, Sawarmal, Jagdish Mulchand, Jagrut Kumar

PAINTING & POLISHING WORKS: Bajrangi

TEXTURED PLASTERS: Junaid

Share your thoughts

(required) Characters Left 500
TOP