Happy Republic Day
Loader
Join Now
The Future Of Design
Explore & Enjoy!!!

Atelier LAVIT’s Woody Hotel Designs

Posted by
on February 22, 2018 at 03:07 PM

Hotels are built to lodge humans who are travelling away from home for any purpose like personal, professional or of pleasure. Though the transient activities of these travelling humans are not expected to disturb the environment of their destination spot, the results are often the opposite, where the very construction of these hotels unleashes disastrous changes in the surrounding environment. Yes, tourism has become one of the biggest threats to ecology today and majorly because of the construction that accompanies it. French design firm Atelier LAVIT’s hotel designs offer respite by breaking away from that norm and blending into their surrounds as seamlessly as if they naturally grew there!

© Courtesy of internet resources

Origin Tree House

Said to have been inspired by a bird's nest, this structure's aerial view would actually have one believe it to be a nest, albeit that of a much larger and hence more disruptive bird than the usual variety! Covering the cabin built around a tall oak tree with wooden slats covering it totally, in an arrangement that rationalizes from the very manner in which birds lay out the twigs to build their enviable homes high up there, achieves the perfect look and feel. 

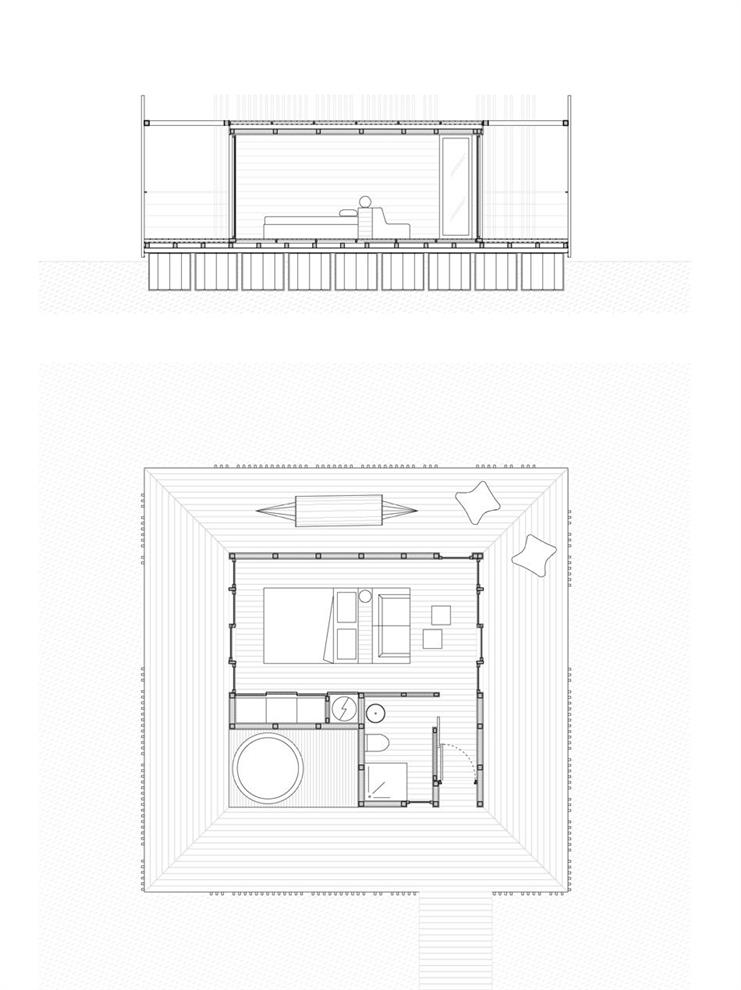
LAVIT were approached to design a unique cabin for the Cabanes Nature et Spa high among the dense tree tops at Chateau de Raray, which received rave reviews after completion in 2017. Completely made of wood inside out, the octagonal plan of this cabin wraps itself around the trunk of a hundred year old Oak tree, tucked cozily into its foliage. While the slatted wood crystalline volume on the exterior makes a pretty picture peeping through the dense foliage, it is the interior that holds the actual surprise.

Contrary to the expectation of rustic interiors that a tree-house would usually evoke, this cabin is exquisitely finely furnished. On approaching it from the suspended walkway that connects to the heated spa lounge platform, one enters the main level of the cabin through a wide doorway having sliding glass shutters. The 250 square feet of space inside has a living room, a seating area with the bedroom, washroom, closet space and a tiny deck around the trunk. The octagonal plan affords eight walls which have been fitted with large clear glass windows that let in ample light, brightening the already light coloured complete poplar wood interiors. A ladder on the deck leads you to the upper level sit-out terrace - a charming all-wood affair with extraordinary views of the forest around. So, there you are, Origin Tree House offers visitors the pampering of a spa in a sublimely comfortably furnished wooden cabin that could pass off as a nest inherent to the lush green environs of the Chateau de Raray forest.

Floating Suites on a Lake

LAVIT was once again commissioned b the Cabanes Nature et Spa to design a lodging that would blend into its environment, the environment this time being the serene lake at the same site. They once again rose to the occasion and delivered the perfect lake stay for the spa's guests - suites that could float on the water!

Once again making wood their primary building material, the designers devised 10 floating platforms near the lake's periphery that hosted the simple arrangement of rooms on them. Each platform was connected to the shore through a boardwalk plank and housed a bed-cum-living room with large closets, attached with a wash and bath room and surrounded by a outdoor lounging deck; some even have a hot tub.

The exterior of each floating suite takes inspiration from the grasses and reeds that grow in and around the lake, mimicking them with an arrangement of tall, vertical slats around the periphery of the square or circular decks. The uneven density of the placement of slats doesn't just serve to blend in with grasses better, but also provides the optimum balance between privacy, light and shade to the inmates of the suites.

Share your thoughts

(required) Characters Left 500
TOP